OPTION Découvrez cette charmante propriété située à Waimes, dotée de 4 chambres spacieuses et d’une surface habitable de 342m². Nichée sur un terrain généreux de 1200m², cette maison offre un vaste espace extérieur parfait pour la détente et les loisirs en famille. De plus, avec ses grands garages, elle est idéale pour les passionnés de voitures ou pour offrir de multiples possibilités de stockage.
L’intérieur de la maison propose une cuisine fonctionnelle avec un espace repas convivial. Les nombreuses fenêtres apportent une belle lumière naturelle, créant une atmosphère agréable et accueillante.
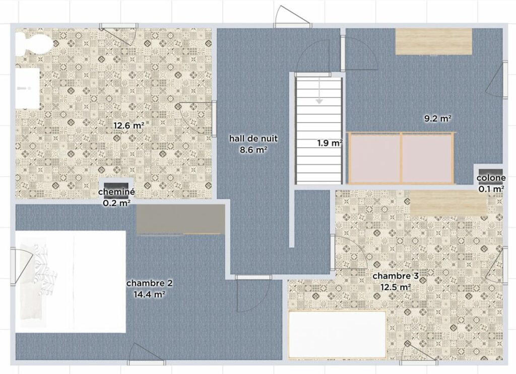
Ce bien dispose également d’une salle polyvalente, entièrement aménageable selon vos envies, offrant un potentiel supplémentaire de 150m2 pour créer un espace de vie unique.
PEB G 538kw ( UC :20250326004174). RC : 472€. Faire offre à partir de 350.000€ sous réserve d’acceptation des vendeurs. Renseignements et visites avec Arnaud au 0483/995.995 ou sur www.immo-9.be. Vous souhaitez vendre ou louer un bien, contactez-nous pour une évaluation gratuite sans engagement !OPTION
Cave14,64 m²Cave10,26 m²Cuisine16,08 m²Salle à manger10,20 m²Living20,62 m²Hall d'entrée3,47 m²Hall d'entrée3,30 m²Salle de douche11,39 m²Buanderie24,23 m²Débarras56,99 m²Garage74,11 m²Garage23,40 m²Garage23,02 m²Débarras19,80 m²Living126,75 m²Living25,32 m²Chambre à coucher 113,13 m²Chambre à coucher 28,36 m²Chambre à coucher 22,36 m²Hall de nuit12,96 m²Salle de douche11,43 m²Chambre à coucher 310,89 m²Chambre à coucher 415,53 m²


Afin de vous offrir la meilleure expérience possible, nous utilisons des technologies telles que les cookies pour stocker et/ou accéder aux informations de votre appareil.
Le fait de consentir à l’utilisation de ces technologies nous permettra de traiter des données telles que votre comportement de navigation ou des identifiants uniques sur ce site.
Le refus ou le retrait du consentement peut avoir un effet négatif sur certaines fonctionnalités et caractéristiques du site.
Remplissez le formulaire avec vos informations et nous reviendrons vers vous aussi vite que posible !
Soit en amont du conflit, en prévoyant une clause de médiation dans vos contrats (compromis de vente, contrat de vente, contrat d’entreprise, contrat d’agence…). Cette clause, acceptée par les parties, stipulera l’obligation préalable à toute procédure d’avoir recours à un médiateur en cas de conflit.